Descriptif
Local commercial à fort potentiel à Saint-Cergue
Opportunité rare : local commercial brut à aménager
Atouts majeurs :
Espace modulable : Rez-de-chaussée + sous-sol.
Surface totale : Environ 660 m², répartis comme suit :
Lot 89-1 : 320 m²
Lot 89-2 : 7 m²
Lot 89-4 : 40 m²
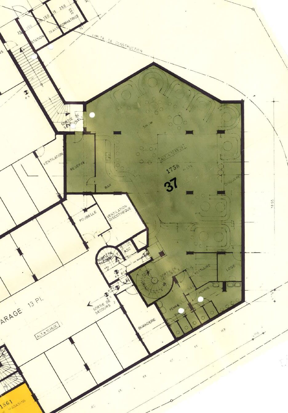
Lot 37 (sous-sol) : 290 m²
Emplacement stratégique : en plein centre du village, offrant une excellente visibilité et une accessibilité optimale.
Flexibilité d’usage : préavis communal accepté en 2020 pour un changement d’affectation (appartement hôtel).
Nombreuses possibilités : commerce de proximité, atelier, showroom, profession libérale, galerie, espace bien-être ou tout autre projet innovant.
Votre avantage : une liberté totale d’aménagement pour créer un espace à votre image, dans un cadre charmant et dynamique.
Contactez-nous dès maintenant pour organiser une visite et découvrir comment ce bien rare peut devenir le cœur battant de votre activité à Saint-Cergue.
Opportunité rare : local commercial brut à aménager
Atouts majeurs :
Espace modulable : Rez-de-chaussée + sous-sol.
Surface totale : Environ 660 m², répartis comme suit :
Lot 89-1 : 320 m²
Lot 89-2 : 7 m²
Lot 89-4 : 40 m²
Lot 37 (sous-sol) : 290 m²
Emplacement stratégique : en plein centre du village, offrant une excellente visibilité et une accessibilité optimale.
Flexibilité d’usage : préavis communal accepté en 2020 pour un changement d’affectation (appartement hôtel).
Nombreuses possibilités : commerce de proximité, atelier, showroom, profession libérale, galerie, espace bien-être ou tout autre projet innovant.
Votre avantage : une liberté totale d’aménagement pour créer un espace à votre image, dans un cadre charmant et dynamique.
Contactez-nous dès maintenant pour organiser une visite et découvrir comment ce bien rare peut devenir le cœur battant de votre activité à Saint-Cergue.
Commodités
Environnement
- Quartier résidentiel
- Restaurant(s)
- Gare
- Arrêt de bus
Intérieur
- WC visiteurs
Equipement
- Raccordement à l'eau
- Raccordement électrique
Sol
- Béton lissé
Etat
- Bon
- A rafraîchir
Ensoleillement
- Bon
Distances
Gare
393 m
7'
7'
2'
Transports publics
378 m
6'
6'
3'
Jardin d'enfants
82 m
1'
1'
1'
Poste
357 m
5'
5'
3'
Restaurants
39 m
1'
1'
1'







